




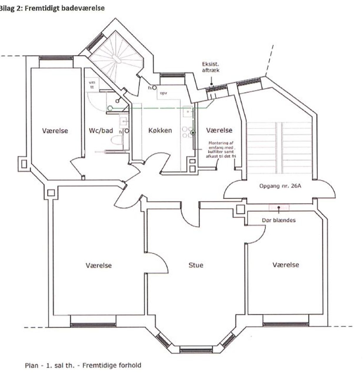
Denne lejlighed giver en enestående mulighed for at skabe en bolig helt efter egne ønsker. Lejligheden indeholder entré/fordelingsgang, fem værelser, toilet samt tekøkken. Hele lejligheden skal totalrenoveres. Al el er fjernet, og der skal etableres ny elinstallation i hele boligen. Gulvene skal fornyes, og lofterne er beskadiget efter et tidligere forsænket loft, hvorfor der skal opsættes nye lofter, der opfylder gældende krav til lydisolering. Derudover skal der etableres både nyt badeværelse og nyt køkken.
I ejerforeningen foreligger der et godkendt altanprojekt, hvor opsætning forventes gennemført i 2026. Sælger har tilmeldt sig projektet og betalt for altanen.
Lejligheden er i dag registreret som erhverv, hvor der tidligere har været tandlæge, men der foreligger byggetilladelse fra kommunen til ombygning til bolig. Køber står selv for ombygningen og færdigmelder efterfølgende projektet til kommunen.
Ejerforeningen består af tre opgange og er særdeles veldrevet med et godt naboskab og mulighed for socialt samvær for dem, der ønsker det. Ejendommen er opført i 1900 og fremstår indbydende med smukke bygningsdetaljer, flotte udskæringer, stort indgangsparti og et bredt trappeløb med elegante balustre. Til ejendommen er hyggelig aflukket børnevenlig gårdhave med cykelparkering, og brugsret til pulterrum i kælderen.
Ejendommen er attraktivt beliggende på hjørnet af Falkoner Allé og Christian Winthers Vej. Falkoner Allé har i de seneste år udviklet sig til et populært handelsstrøg med Frederiksberg Centret samt et varieret udvalg af specialforretninger, caféer og restauranter. Samtidig er der kort afstand til skønne rekreative områder som Frederiksberg Have, Søerne og Landbohøjskolens smukke have, der er en oplevelse året rundt. Frederiksberg Biograf og metrostationen ved Frederiksberg Centret ligger desuden blot få minutters gang fra ejendommen.
Denne lejlighed giver en enestående mulighed for at skabe en bolig helt efter egne ønsker. Lejligheden indeholder entré/fordelingsgang, fem værelser, toilet samt tekøkken. Hele lejligheden skal totalrenoveres. Al el er fjernet, og der skal etableres ny elinstallation i hele boligen. Gulvene skal fornyes, og lofterne er beskadiget efter et tidligere forsænket loft, hvorfor der skal opsættes nye lofter, der opfylder gældende krav til lydisolering. Derudover skal der etableres både nyt badeværelse og nyt køkken.
I ejerforeningen foreligger der et godkendt altanprojekt, hvor opsætning forventes gennemført i 2026. Sælger har tilmeldt sig projektet og betalt for altanen.
Lejligheden er i dag registreret som erhverv, hvor der tidligere har været tandlæge, men der foreligger byggetilladelse fra kommunen til ombygning til bolig. Køber står selv for ombygningen og færdigmelder efterfølgende projektet til kommunen.
Ejerforeningen består af tre opgange og er særdeles veldrevet med et godt naboskab og mulighed for socialt samvær for dem, der ønsker det. Ejendommen er opført i 1900 og fremstår indbydende med smukke bygningsdetaljer, flotte udskæringer, stort indgangsparti og et bredt trappeløb med elegante balustre. Til ejendommen er hyggelig aflukket børnevenlig gårdhave med cykelparkering, og brugsret til pulterrum i kælderen.
Ejendommen er attraktivt beliggende på hjørnet af Falkoner Allé og Christian Winthers Vej. Falkoner Allé har i de seneste år udviklet sig til et populært handelsstrøg med Frederiksberg Centret samt et varieret udvalg af specialforretninger, caféer og restauranter. Samtidig er der kort afstand til skønne rekreative områder som Frederiksberg Have, Søerne og Landbohøjskolens smukke have, der er en oplevelse året rundt. Frederiksberg Biograf og metrostationen ved Frederiksberg Centret ligger desuden blot få minutters gang fra ejendommen.

